Request
Do you wish to receive more information? Please fill out the form below, our team would be glad to help.
Yes, I would like more information from Columbus International. Please use and/or share my information with a Columbus International agent to contact me about my real estate needs.
By clicking SEND MESSAGE, I agree a Columbus International Agent may contact me by phone or text message including by automated means about real estate services, and that I can access real estate services without providing my phone number. I acknowledge that I have read and agree to the Terms of Use and Privacy Policy
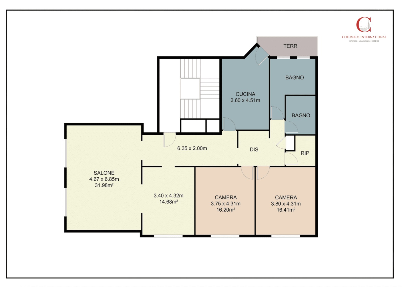
Near the Le Cure district, in an elegant setting, we are pleased to offer for sale this splendid 130 sqm apartment, located on the fifth floor of a beautiful 1960s building.
The property consists of: entrance, a large and bright room, a study with the possibility of a third bedroom, a kitchen with direct access to a 10 sqm balcony, two double bedrooms, two bathrooms and a closet. A truly unique property of its kind, central and easily accessible by public transport.
Do you wish to receive more information? Please fill out the form below, our team would be glad to help.
We use essential cookies to make our site work. With your consent, we may also use non-essential cookies to improve user experience and analyze website traffic. By clicking “Accept,“ you agree to our website's cookie use as described in our Cookie Policy. You can change your cookie settings at any time by clicking “Preferences.”